• Beach-front lot Seal Beach
  • Rear of home (beach side) with pool
  • Pool
  • Pool - steps from the sand
  • Exterior entry
  • Dining/Living/Beach view
  • Foyer
  • Kitchen
  • Kitchen/Family Room
  • Bathroom
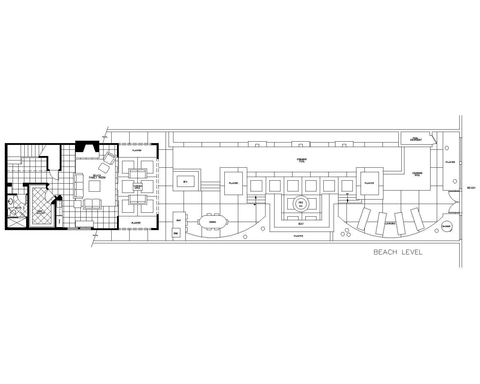
  • Beach level plan
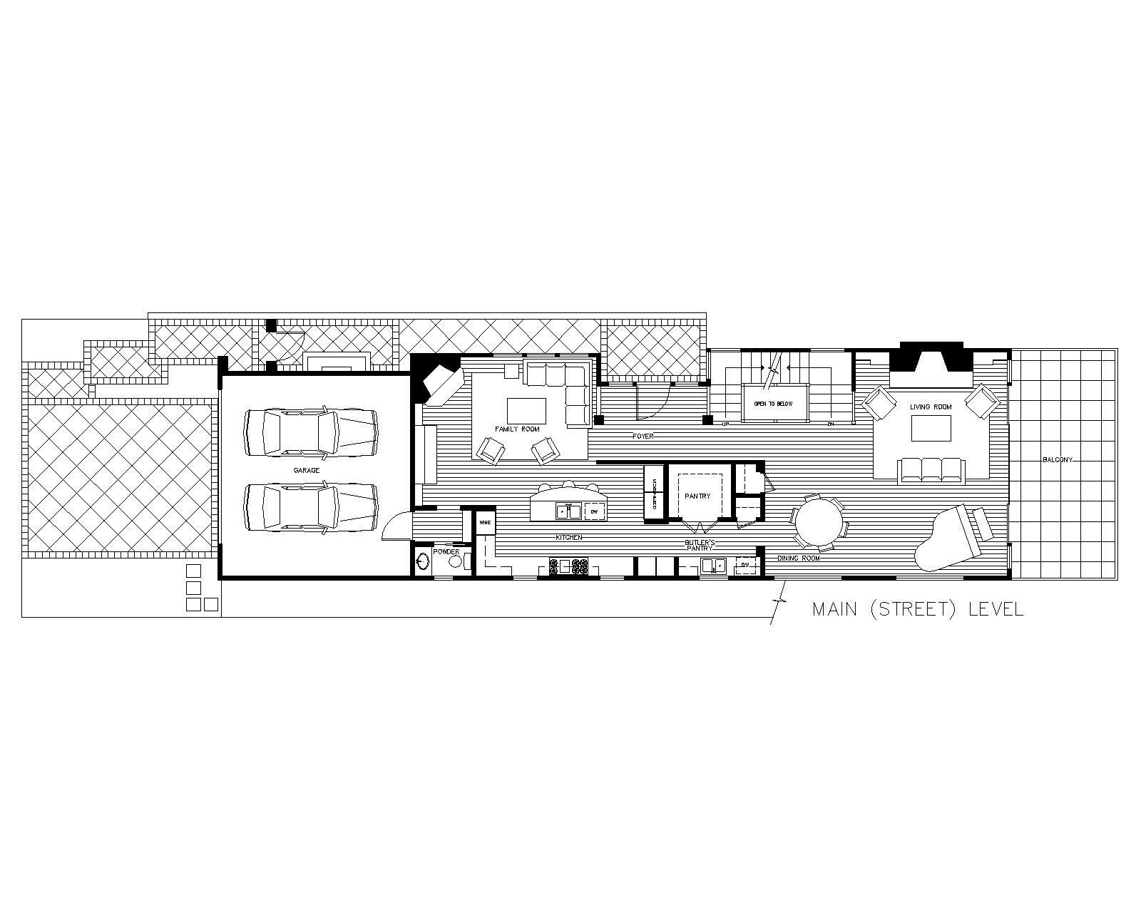
  • Main level plan
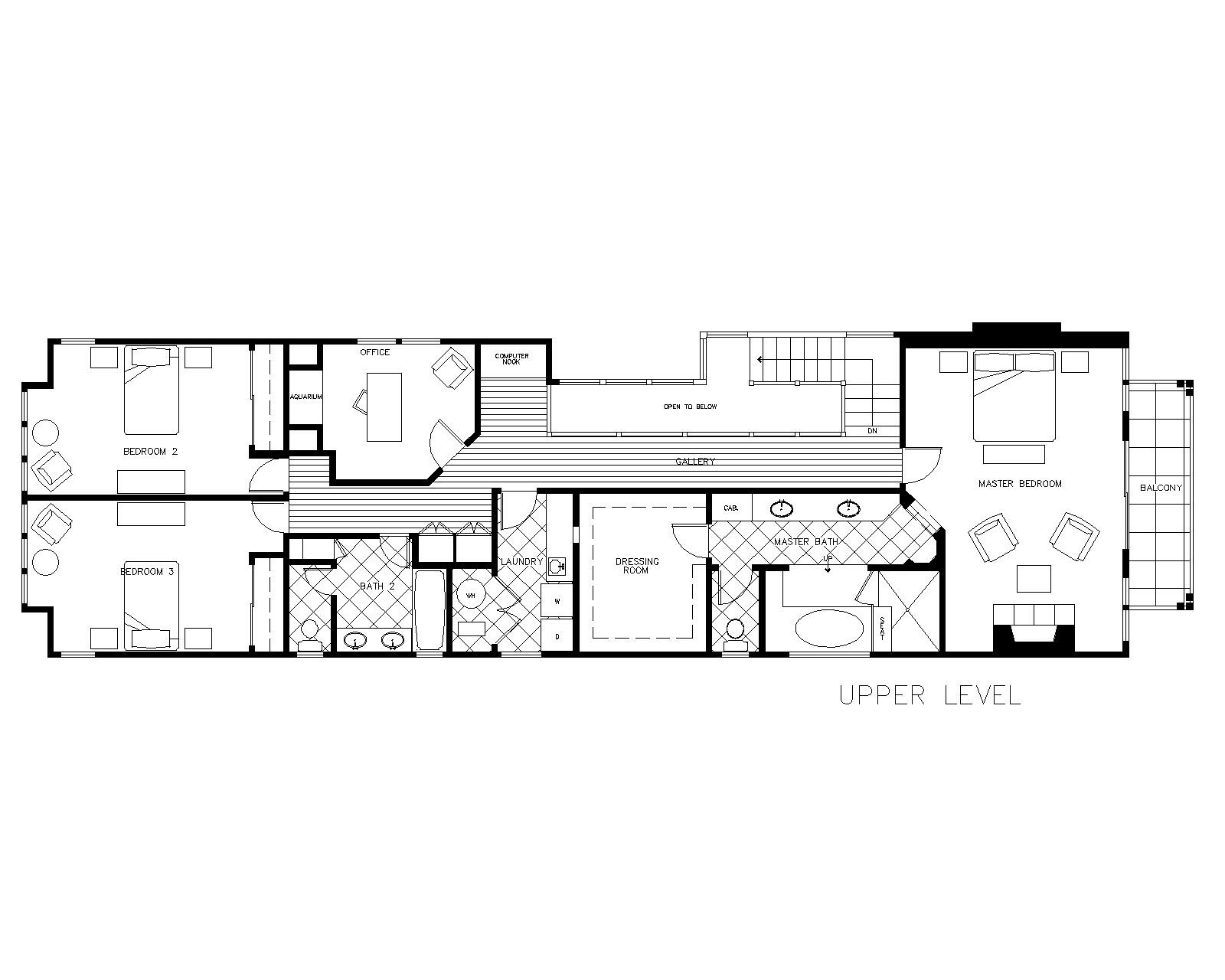
  • Upper level plan

Beach-front Bungalow - Gold Coast/Seal Beach

Gold Coast Seal Beach. Warm, cozy home with resort-like pool area.

View Another Project